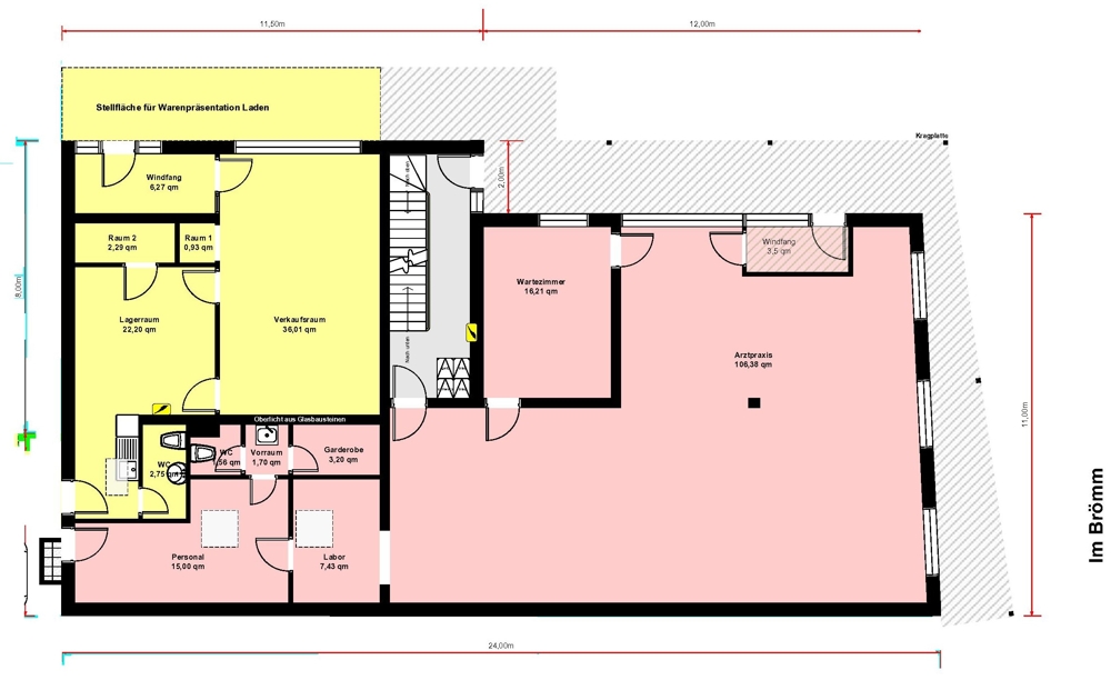
Zum Verkauf steht ein kleines Wohn- und Geschäftshaus in ruhiger, verkehrsberuhigter Lage im Gelsenkirchener Stadtteil Scholven. Das Gebäude verbindet Wohnen und Gewerbe und bietet eine interessante Mischung aus soliden Mieteinnahmen und weiterem Entwicklungspotenzial. Im Erdgeschoss befindet sich eine rund 151 m² große Hausarztpraxis, deren Mietvertrag langfristig bis Ende 2030 verlängert wurde. Nebenan liegt ein etwa 70 m² großes Ladenlokal, das aktuell als Lebensmittelgeschäft genutzt wird. Die Wohnflächen verteilen sich auf eine rund 101 m² große Wohnung sowie auf eine 63 m² große Wohnung, die 2015 vollständig modernisiert wurde; beide Wohnungen sind derzeit vermietet. Ergänzt wird das Objekt durch drei Garagen, die zusätzliche Einnahmemöglichkeiten eröffnen.
Die Lage im gewachsenen Wohnumfeld von Scholven bietet kurze Wege zu Einkaufsmöglichkeiten, Ärzten, Schulen und öffentlichen Verkehrsmitteln. Auch die Anbindung an die umliegenden Stadtteile und die Autobahnen ist gegeben. Insgesamt handelt es sich um eine Immobilie mit stabilen Einnahmen, gesichertem Mietverhältnis im gewerblichen Bereich und attraktiven Perspektiven durch die frei werdende Wohnung.
Volksbank Immobilien
Rhein-Ruhr GmbH
Breddestr. 8
45894 Gelsenkirchen